Chenab River Railway Bridge
Chenab Railway Bridge
Katra, Jammu-Kashmir, India
1,188 feet high / 362 meters high
1,532 foot span / 467 meter span
2023
There is probably no other natural barrier on earth that has been more formidable to railway engineers than the Himalayan mountain range that stretches across northern India. This became all too obvious when the Indian railway decided to build a line connecting the states of Jammu and Kashmir in the Himalayan foothills of Northwestern India. When construction began in earnest in 2002, the engineers never expected extensive delays due to poor geology, access problems, tunnel excavation difficulties and labor disputes. When the 213 mile (343 kilometer) line finally opens in 2023, it will be the most expensive stretch of India’s 40,000 mile (64,374 km) railway network.
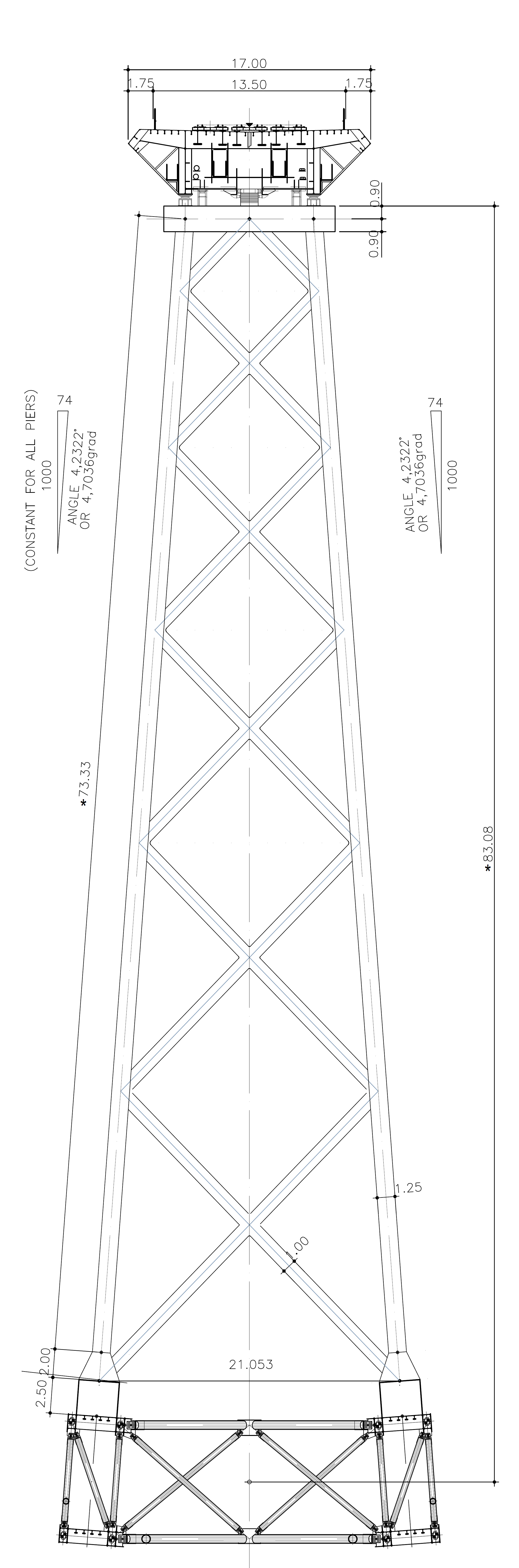
Of the many large barriers the railway crosses, the most daunting is the wide gorge of the Chenab River. With its headwaters high up in the Himalayan mountain range, the river carved a deep gash that left its elevation more than a 1,000 feet (305 mtrs) below the level of the rail line. The engineers decided the only bridge type suitable for the location would be a massive steel arch - the highest ever built for a railway at 1,056 feet (322 meters) from deck to water. With a length of 1,532 feet (467 meters), the main span ranks among the world’s 10 longest railway arches. Although its height will also surpass all of China’s current arch bridges, China's Sichuan-Tibet Railway line has 3 suspension railway bridges that are higher than Chenab Bridge.
Construction was done by building the arch outward from both sides of the canyon using the stayed cantilever method. This technique was also used for the similar design of the New River Gorge bridge in West Virginia, U.S.A. The uneven sides of the Chenab gorge will result in one side of the arch terminating into the foundation 40 feet (12 meters) higher than the other side. The two sides of the arch lean inward with the springings 30 meters apart and the crown 10.5 meters apart. This robust design allows the structure to withstand speeds of up to 161 mph or 260 kph. The bridge has 3 expansion joints with 2 separated by 785 meters including the main arch.
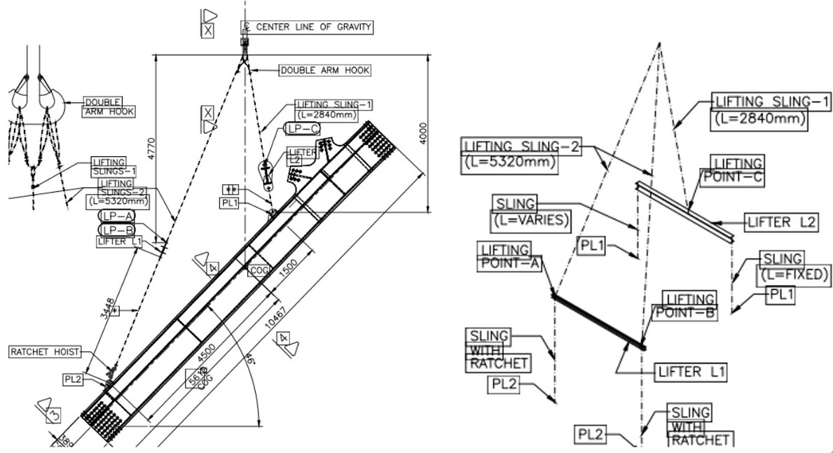
Nearly all the fabrication took place at the remote location including welding and painting. The 25,000 tons of steel are all connected by approximately 600,000 bolts. The cable crane towers used for construction spanned 915 meters, among the longest ever erected for a bridge. The cable high line had a maximum carrying capacity of 37 tons.
In September of 2008 it was announced that the Chenab Railway Bridge was canceled despite the completion of the approach viaducts in 2007. Difficult geological conditions on the steep slopes supporting the arch foundations were sited as the reason as well as the development of a lower, more direct route through tunnels. In 2013 this decision was reversed and the original route was back on track with the bridge being constructed as originally planned.
Chenab Railway Bridge is more than just another bridge but a prestigious symbol of how far India and its railway engineers have come since the country’s first mile of railway track became operational more than 150 years ago.
Chenab and Anjikhad bridges are located less than 10 miles (16 kms) north of the busy tourist town of Katra. Despite its small population, Katra is loaded with hotels and restaurants due to its proximity to the Vaishno Devi, the second most visited religious shrine in all of India after the Tirumala Venkateswara Temple. Located a mile above sea level, the large complex of white buildings steps down the side of the holy mountain of Vaishno Devi. The Hindu shrine is located about 8 miles (13 kms) from Katra and is visited by millions of people a year. There is an airport in the much larger city of Jammu, located 30 miles (48 kms) south of the Chenab bridge.
The Kashmir valley has always been one of the most isolated regions in India. The rail line has finally opened up the area to the rest of India and the outside world. For a more extensive history of the railway and its construction visit http://en.wikipedia.org/wiki/Kashmir_railway.
Image by LALIT SINGH RAWAL.
Image by LALIT SINGH RAWAL.
Image by LALIT SINGH RAWAL.
Image by LALIT SINGH RAWAL.
Image by LALIT SINGH RAWAL.
Image by LALIT SINGH RAWAL.
Image by LALIT SINGH RAWAL.
Image by LALIT SINGH RAWAL.
Image by LALIT SINGH RAWAL.
Image by LALIT SINGH RAWAL.
Image by LALIT SINGH RAWAL.
Image by LALIT SINGH RAWAL.
Image by LALIT SINGH RAWAL.
Image by LALIT SINGH RAWAL.
Image by LALIT SINGH RAWAL.
The square ribs of the main arch that will be filled with concrete after they are raised into position.
Chenab River canyon with the completed approach spans visible on the right. Image by WSP.
The two construction highline towers that are located more then 700 meters apart.
Chenab Railway Bridge wind tunnel test. Image by WSP.
An early Chenab Railway Bridge render.
The approach spans were completed several years before construction began on the main arch.
Chenab Railway Bridge north side staging area and construction site.
Chenab Railway Bridge south side staging area and construction site.
Chenab Railway Bridge topo map.
A wide satellite view shows the Chebab River near the top and the Anjikhad River across the bottom.
Chenab Railway Bridge location map.
Map of the Kashmir Railway route. The Chenab Bridge will be located between the stations of Reasi Road and Katra.
Image by Prashant Chaudhary




























































