Danhe Bridge
Danhe Bridge
丹河大桥
Jincheng, Shanxi, China
(295) feet high / (90) meters high
479 foot span / 146 meter span
2001
The Danhe arch bridge is special not so much for its 90 meter height but for its main span length of 146 meters which is a world record for any stone or masonry bridge. China has the world's 20 longest stone arch bridges and with labor costs increasing rapidly in China, Danhe will probably remain the longest span bridge of its type forever. China is the only country in the world still constructing arch bridges with stone blocks.
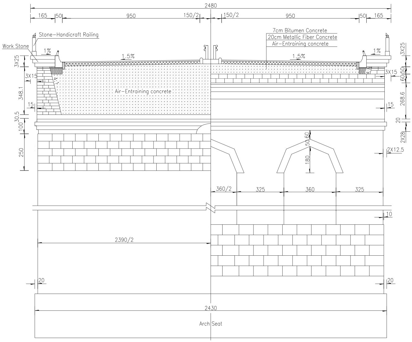
Despite the reputation such bridges have for being on smaller, less traveled two lane roads, the Danhe Bridge was designed and built to carry heavy traffic across a modern 4-lane expressway. The bridge is 24.8 meters wide with an arch that rises 32.444 meters for a span to rise ratio of 4.5 to 1. The arch ring has a variable depth of 3.5 meters at the base to 2.5 meters at the crown. The total length of the bridge is 413.7 meters with 8 spans of 2x30 + 146 + 5x30 meters. The stones were used for the main arch ring in layers 36cm to 60cm deep. The total number of stone blocks amounted to 34,409 for the arch ring. The main rib supports 14 spandrel spans with a wall to wall distance of 31 feet (9.4 meters). The massive span was constructed upon a huge steel scaffold-like centring. The bridge is located about 15 miles (24 kms) east of Jincheng in Shanxi Province along the G5512 Expressway.
In 2009 a reservoir formed beneath the bridge from a downstream dam.
Image by Jueshan.net.
A view of the Danhe River valley before the reservoir formed.
Image by bbs.voc.com.cn.
Danhe Bridge satellite image.
Danhe Bridge location map.



















