Najiehe Railway Bridge
Najiehe Railway Bridge
纳界河特大桥
Liuchangxiang, Guizhou, China
1,017 feet high / 310 meters high
1,155 foot span / 352 meter span
2016
Upon its opening in 2016, the Najiehe Railway Bridge became the highest railway span on earth with a deck approximately 310 meters above the original level of the great Wujiang River. The 352 meter span steel arch is the highest structure on an east-west line that connects Guiyang city with Zhijin and Nayong to the west.
The Wu River is known as the Sancha River where the Najiehe Railway Bridge crossing is located. By far the largest and most famous river in Guizhou Province, the Wujiang also has more high bridges across its waters then any other river in the world. The single track railway line has several other high bridges along its route, most notably the giant beam span over the Wuzuohe River.
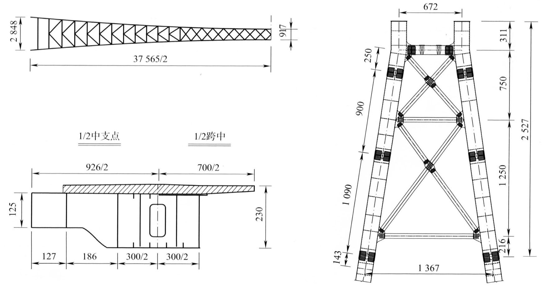
The all steel arch is unique for having two concrete T-beam balanced cantilever spans on either side with a span configuration of 48.85 and 48 meters on piers 56 meters tall. The smaller spans over the arch are 24.7 meters each while most of the approach spans are 32.7 and 24.7 meters.
The Najiehe Railway arch pieces were lowered into place using a highline with two towers 120 meters tall with a span of 458 meters. The rail level is at elevation 1229 meters and is approximately 259 meters above the full level of a reservoir formed from a downstream dam and approximately 310 meters to the original level of the Sancha (Wujiang) River.
当纳界河大桥在2016年开通时,它就成为了世界上最高的铁路桥。其桥面距离桥下乌江原始水面高达310米。这座钢拱桥是从贵阳到织金、纳雍铁路上最高的桥。
纳界河大桥跨越的这段乌江,在当地又称为三岔河。乌江是贵州最大最著名的河流,同时也是世界上高桥最多的河。这条单轨铁路上除纳界河大桥外还有许多高桥,最高的是跨越武佐河的梁桥(220米高)。
这座钢拱桥的独特之处是在其两边交界墩上各有一个钢筋混凝土T梁结构,这个结构跨度48米,交界墩高58米。拱圈上的钢立柱之间的跨度为24.7米,引桥每跨跨度在32.7至24.7米之间。
纳界河铁路拱桥的钢拱肋是用一座缆索吊机起吊后安装的,该缆索吊跨度458米,塔高120米。桥面高程海拔1229米,大约比桥下水库满水位高259米,到三岔河(乌江)原始水位高约310米。
Image by Eric Sakowski / HighestBridges.com
Image by Eric Sakowski / HighestBridges.com
Image by Eric Sakowski / HighestBridges.com
Image by John Filmer.
The main span of 352 meters consists of four steel box beam ribs. Image by Peter Wu.
Image by John Filmer.
Image by Eric Sakowski / HighestBridges.com
Image by John Filmer.
Image by Eric Sakowski / HighestBridges.com
Image by Eric Sakowski / HighestBridges.com
Image by Eric Sakowski / HighestBridges.com
Arch sensors. Image by Eric Sakowski / HighestBridges.com
Image by Eric Sakowski / HighestBridges.com
Image by Eric Sakowski / HighestBridges.com
Image by Eric Sakowski / HighestBridges.com
Image by Eric Sakowski / HighestBridges.com
Image by Eric Sakowski / HighestBridges.com
Image by Eric Sakowski / HighestBridges.com
Image by Eric Sakowski / HighestBridges.com
Image by Eric Sakowski / HighestBridges.com
Image by Eric Sakowski / HighestBridges.com
Image by Eric Sakowski / HighestBridges.com
Image by Eric Sakowski / HighestBridges.com
Image by Eric Sakowski / HighestBridges.com
Image by Eric Sakowski / HighestBridges.com
Image by Eric Sakowski / HighestBridges.com
Image by Eric Sakowski / HighestBridges.com
Image by Eric Sakowski / HighestBridges.com
Image by Eric Sakowski / HighestBridges.com
Image by Eric Sakowski / HighestBridges.com
Image by Eric Sakowski / HighestBridges.com
Image by Eric Sakowski / HighestBridges.com
Image by Eric Sakowski / HighestBridges.com
Image by Eric Sakowski / HighestBridges.com
Image by Eric Sakowski / HighestBridges.com
Image by Eric Sakowski / HighestBridges.com
Image by Eric Sakowski / HighestBridges.com
Image by Eric Sakowski / HighestBridges.com
Image by Eric Sakowski / HighestBridges.com
Image by Eric Sakowski / HighestBridges.com
Image by Eric Sakowski / HighestBridges.com
Image by Eric Sakowski / HighestBridges.com
Image by Eric Sakowski / HighestBridges.com
Image by Eric Sakowski / HighestBridges.com
Image by Eric Sakowski / HighestBridges.com
Image by Eric Sakowski / HighestBridges.com
Image by Eric Sakowski / HighestBridges.com
Image by Eric Sakowski / HighestBridges.com
Najiehe Railway Bridge satellite image.
Najiehe Railway Bridge satellite image before construction began.
Najiehe Railway Bridge location map.


















































































