Niujiagou Bridge
Niujiagou Bridge
牛家沟大桥
Zhaotong, Yunnan, China
686 feet high / 209 meters high
591 foot span / 180 meter span
2016
The Mazhao expressway is the last link of the G85 Yinchuan-Kunming Expressway that had not been completed due to the difficult terrain that required the construction of many large beam bridges and tunnels in the mountains north of Zhaotong City in Northeastern Yunnan Province. Of these 8 large bridges, the highest is the Niujiagou Bridge that crosses a deep gully next to the Hengjiang River.
Prior to construction this bridge was to be called Xiongjiagou Bridge.
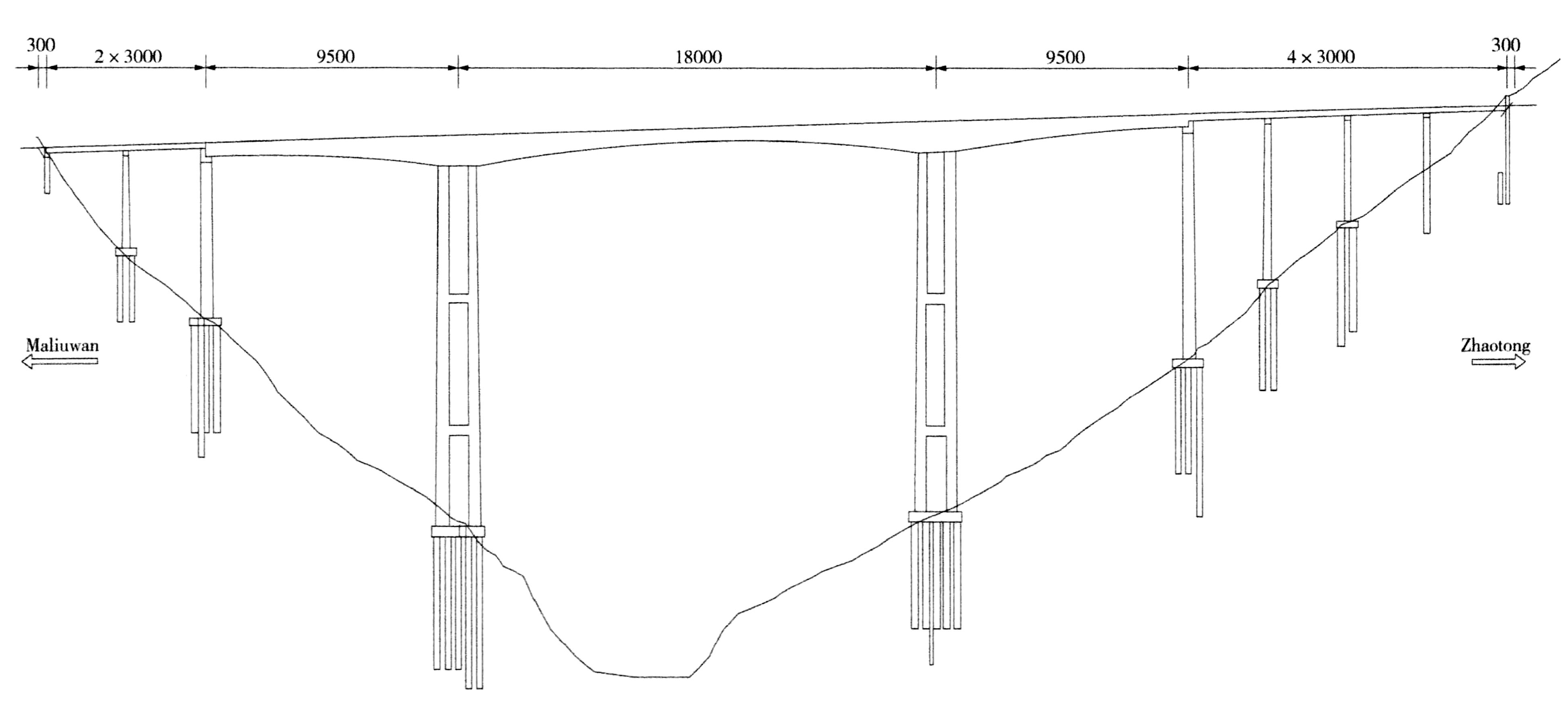
The Niujiagou Bridge is most notable for having 2 of the tallest piers in Yunnan Province at 136 meters. They support a span configuration of 2x30 +95+180+95 +4x30 meters. The main span beam has a width of 12 meters at deck level and 6.5 meters at the bottom. The beam has a depth of 11 meters over the piers and 4.5 meters at midspan. The tall piers have a downward slope of 100:1 in both directions and are supported on foundations with 24 piles with a diameter of 2 meters. The road deck has a clear width of 11 meters.
There are at least 7 other high beam bridges on the route that overlook the Heng River gorge including Daguanhe, Sayuhe, Paotongwan, Longdongwan, Zhilaigou, Shanchagou and Yaoyan. This stretch of expressway will be 97% bridge and tunnel for at least 20 kilometers.
Image by Eric Sakowski / HighestBridges.com
Image by Eric Sakowski / HighestBridges.com
Image by Eric Sakowski / HighestBridges.com
Image by Eric Sakowski / HighestBridges.com
Image by Eric Sakowski / HighestBridges.com
Image by Eric Sakowski / HighestBridges.com
Image by Eric Sakowski / HighestBridges.com
Later render views of the Niujiagou Bridge show a height of 217 meters but laser measurements of the downstream viaduct reveal a height of 209 meters which was the original height figure released when the bridge was first announced.
Some of the bridges and tunnels along the G85 expressway in the Sayuhe River canyon.
Map of the Mazhao section of the G85 expressway that was constructed between 2013 and 2016.
Niujiagou Bridge satellite image.
Mazhao G85 expressway map showing the many high bridges that are located on the south slope of the Sayuhe River canyon. All are over 90 meters in height except for Daguanhe which is 70 meters high.























