Sfalassa Bridge
Sfalassà Bridge
Viadotto Sfalassà
Bagnara Calabra, Calabria, Italy
820 feet high / 250 meters high
1,181 foot span / 360 meter span
1974
Image courtesy of journalist Francesco Romeo.
Crisscrossing the Lucanian and Calabrian Apennines mountain range in southern Italy is the Autostrada Napoli-Reggio Calabria or A3 motorway. Built in several sections throughout the 1970s, it stretches 300 miles (483 kms) from Napoli to the tip of Italy’s boot near the island of Sicily. With dozens of tunnels and towering bridges, it is a showcase of Italian engineering. The last few miles of the motorway traverse some of the most spectacular coastal terrain in all of Italy. Crossing the deepest of these ravines is the Sfalassà gorge bridge, the highest and longest span frame bridge in the world. Rising 820 feet (250 mtrs) above the canyon floor, the bridge was the 3rd highest in the world upon its opening in 1974. The main span measures 1,181 feet (360 mtrs) between the pins of the two 500 foot (152 mtr) long angled box beam struts.
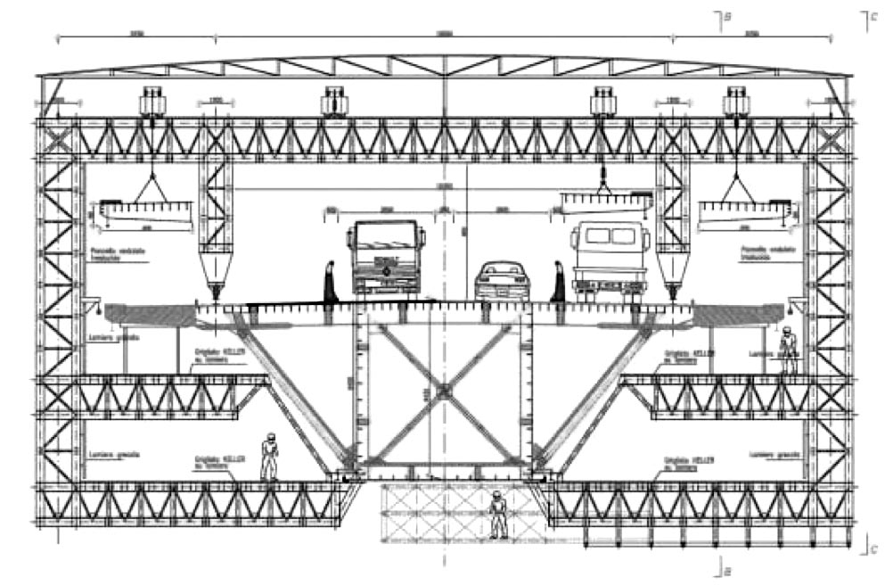
A frame bridge combines elements of an arch bridge and a beam bridge. In an arch bridge, the support follows a continuous curve from one foundation to another. In a frame bridge, the road deck is supported by two inclined piers that are straight. These two struts usually support 3 horizontal beam spans that carry the roadway on top.
To construct Sfalassà, the two struts were built vertically like a 50 story skyscraper and then lowered out over either side of the gorge to an angle of approximately 50 degrees. Held back by a large temporary truss and several cable stays, the struts finally supported the roadway after the central span was completed. The design is credited to Silvano Zorzi, Lucio Lonardo and Sabatino Procaccia.
In recent years, parts of the A3 have become congested as well as unsafe with no shoulders and curves that are too tight. Now underway is a huge reconstruction of the most troublesome stretches. New tunnels, wider curves and wider lanes and shoulders in both directions will make the original Autostrada Napoli-Reggio Calabria a thing of the past. As part of the reconstruction, Sfalassà was widened in 2009 and 2010 as well as having both of the multi-span approach viaducts completely rebuilt. A customized traveler moved across the older 63 foot (19 mtr) wide deck and added wider wings to the cantilevered roadway, making the new Sfalassà 82 feet (25 mtr) wide. For each of the approaches, a new 3-span configuration with wider viaducts for the north and south lanes replaced the older spans. The total length of the bridge is now 2,536 feet (773 mtrs) with equal length approaches of 651 feet (198.5 mtrs).
Sfalassà gorge bridge is located just 10 miles (16 kms) from the site of the upcoming Messina bridge between the Italian mainland and the island of Sicily. When it opens in 2018, the Messina Strait crossing will contain the world’s longest bridge span and the world’s tallest bridge towers.
A 2009 view of the bridge shows the south side slope being prepared for the new tunnel. The older approach viaducts will be removed and the original tunnels will be filled in. Image courtesy of Francesco Romeo.
A panorama of the bridge from the new terrace high above the new tunnel portal. A new tunnel can also be seen on the far side of the crossing. Image courtesy of journalist Francesco Romeo.
A new pier is constructed beneath the original approach span. The new spans will be at least 197 feet (60 mtrs) long. The original approach spans were 148 feet (45 mtrs). Image courtesy of journalist Francesco Romeo.
Image courtesy of journalist Francesco Romeo.
Image courtesy of journalist Francesco Romeo.
The world's longest bridge struts will soon be supporting hundreds of tons of new steel from the bridge deck widening. Image courtesy of journalist Francesco Romeo.
Image courtesy of journalist Francesco Romeo.
Image courtesy of journalist Francesco Romeo.
Image courtesy of journalist Francesco Romeo.
Image courtesy of journalist Francesco Romeo.
A construction shot of the main span taken around 1971. Image courtesy of journalist Francesco Romeo.
Image courtesy of journalist Francesco Romeo.
Image courtesy of journalist Francesco Romeo.
Sfalassa construction procedure.
Image courtesy of journalist Francesco Romeo.
Image courtesy of journalist Francesco Romeo.
Image courtesy of journalist Francesco Romeo.
Image courtesy of journalist Francesco Romeo.
Image courtesy of journalist Francesco Romeo.
Image courtesy of journalist Francesco Romeo.
Image courtesy of journalist Francesco Romeo.
Image courtesy of journalist Francesco Romeo.
Image courtesy of journalist Francesco Romeo.
The massive 21 foot (6.4 mtr) high box beam interior during the 2009 bridge rebuild. Image courtesy of journalist Francesco Romeo.
One of the X braces looks to have been filed down a bit from a steel cable. Image courtesy of journalist Francesco Romeo.
Image courtesy of journalist Francesco Romeo.
Image courtesy of journalist Francesco Romeo.
One of many smaller viaducts near Sfalassà that cling to the mountain slopes high above the Mediterranean Sea. Image courtesy of journalist Francesco Romeo.
Image courtesy of journalist Francesco Romeo.
Image courtesy of journalist Francesco Romeo.
Image courtesy of journalist Francesco Romeo.
Image courtesy of journalist Francesco Romeo.
Image courtesy of journalist Francesco Romeo.
Image courtesy of journalist Francesco Romeo.
Once completed, it is standard procedure in Italy to load test a huge span with dozens of gravel-filled trucks. The moment also allows for some wonderful photo opportunities. Image courtesy of journalist Francesco Romeo.
Image courtesy of journalist Francesco Romeo.
Image courtesy of journalist Francesco Romeo.
Image from Fritz Leonhardt's famous 1984 book Brücken / Bridges.
Image courtesy of journalist Francesco Romeo.
The original 63 foot (19.1 meter) wide Sfalassà deck
The customized traveler that will allow the original deck to be widened to 82 feet (25 mtr).
Sfalassà Bridge satellite image.
Satellite view showing several bridges and tunnels along the A3 including Sfalassà bridge at the bottom and the coastal town of Bagnara Calabra.
Sfalassà Bridge location map.


































