Yindihe Bridge
Yindihe Bridge
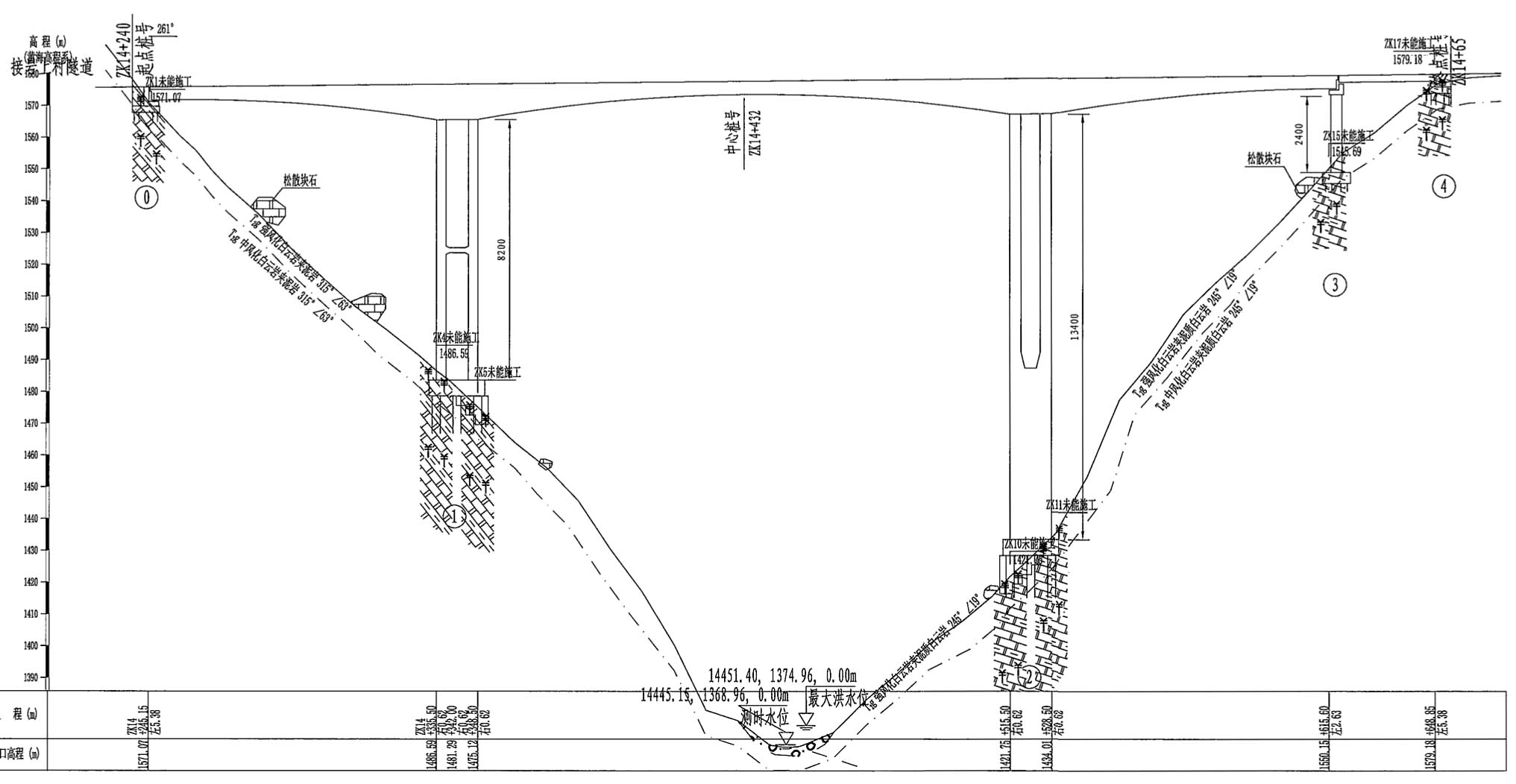
引底河特大桥
Nayong, Guizhou, China
682 feet high / 208 meters high
591 foot span / 180 meter span
2025
Yindihe Bridge is the highest bridge along the Nayong to Hezhang Expressway in eastern Guizhou Province. The route has more than half a dozen high bridges including the beautiful Minjiagou arch bridge.
The main span of 180 meters is supported on piers 129 and 82 meters tall.
Image by Eric Sakowski / HighestBridges.com
Image by Eric Sakowski / HighestBridges.com
Image by Eric Sakowski / HighestBridges.com
Image by Eric Sakowski / HighestBridges.com
Image by Eric Sakowski / HighestBridges.com
Image by Eric Sakowski / HighestBridges.com
Image by Eric Sakowski / HighestBridges.com
Yindihe Bridge satellite image.
Yindihe Bridge location map.











